周期荷载作用下土钉支护的累积效应有限元分析
祝方才1, 2,廖新贵2,李建华2
(1. 中南大学 地学与环境工程学院,湖南 长沙,410083;
2. 湖南工业大学 岩土工程研究所,湖南 株洲,412008)
摘 要:针对交通荷载下土钉支护边坡的力学特征,将交通荷载简化为循环荷载,以室内模型试验为基础,基于Mohr-Coulomb准则,建立土钉支护动力稳定分析的弹塑性平面应变有限元模型,加载频率为2 Hz,加载幅值为10~30 kPa。研究结果表明:坡面位移随循环加载次数增加而增大,出现明显的累积效应,坡顶沉降出现沉降槽,累积效应不明显;土钉轴力的变化与位置有关,在动载下,靠近坡顶的轴力增加较大,但随着循环加载次数增加出现衰减效应,下部土钉轴力变化不大;室内模型试验结果与数值模拟结果存在一致性。
关键词:周期荷载;土钉支护;土钉轴力;坡顶沉降;累积效应
中图分类号:TU435 文献标志码:A 文章编号:1672-7207(2009)06-1751-06
Accumulative effect of soil nailing under cyclic load through finite element analysis
ZHU Fang-cai1, 2, LIAO Xin-gui2, LI Jian-hua2
(1. School of Geoscience and Environmental Engineering, Central South University, Changsha 410083, China;
2. Institute of Geotechnical Engineering, Hunan University of Technology, Zhuzhou 412008, China)
Abstract: According to the mechanism of soil nailing, traffic load was simplified as cyclic load, an elasto-plastic finite element model was set up under dynamic load based on Mohr-Coulomb criterion, with frequency of 2 Hz and load intensity of 10-30 kPa. The results show that the displacement of panel increases with the increase of cyclic load number, indicating obvious accumulative effect. The shape of settlement of slope crest is half-bowl with unobvious accumulative effect. Axial force of soil nails has obvious increment at upper position, whereas no distinct increment at lower position, and the increment shows attenuation with cyclic number. The experimental results are in accordance with the simulated ones.
Key words: cyclic load; soil nailing; axial force of soil nails; settlement of slope crest; accumulative effect
土钉支护是一种广泛采用的边坡支护技术[1]。随着交通业和建筑业的发展,土钉支护抗动载特性逐渐引起人们的重视,现有的土钉支护规范是以原有不考虑动载的规范[2]为基础制定的,考虑的载荷主要是爆破、地震等偶然荷载[3-4],而对于交通荷载这类循环动荷载研究较少。董建华等[5]通过能耗原理得出了动载作用下土钉边坡的稳定性计算方法。准现场试验结果表明,土钉支护有较强的抗动载能力[3],但在多次动载作用下,土钉支护变形随着循环加载系数的增加而增大,即出现明显的变形累积效应[6]。因此,在土钉支护的抗动载设计中,安全系数和变形累积效应均要予以考虑。现有的土钉支护抗动载研究基本上以计算为主,而对循环荷载作用下的土钉支护试验和理论研究均较少。在此,本文作者基于室内物理模型试验,利用有限元研究循环荷载作用下土钉支护边坡的累积效应,与模型试验结果进行对比,验证数值计算的精确性,并提出工程设计参考意见和建议。
1 室内模型试验简介
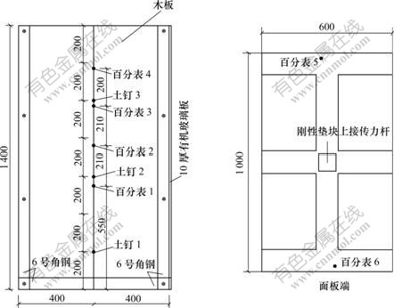
交通荷载较复杂,呈现一定的统计规律[7],以低频荷载为主[8],频率为2.5~20 Hz。为模拟方便,将交通荷载简化为循环荷载,采用西安力创公司制造的微机控制同步多点加载系统输出荷载。模型试验在长×高×宽为1.4 m×1.4 m×0.8 mm的模型箱内进行,模型箱采用厚度为5 mm的钢板,外侧用4根边长为50 mm的角钢用螺栓连接,内侧由4根70 mm角钢固定,一侧壁用厚度为10 mm的透明有机玻璃板,面板是厚度为15 mm实木板,对所填土体预先进行粉碎风干,过孔径为5 mm筛,然后,配水闷7 d,模型箱自下而上分层填土,分层厚度为10 cm,填土高度为120 cm,第1层和第2层按90%的压实度击实,其他10层按80%压实度击实。为考虑累积变形,在坡顶和面板外侧布置百分表,在靠近土体的一侧布置土压力盒。土压力盒由于出现故障,导致数据无法读出,仅列出百分表读数,如图1所示。

单位:mm
图1 模型箱尺寸及测试仪表布置
Fig.1 Parameters of test box and layout of test units
土的含水量为13%,压实度为80%时,对应的压缩模量为4 MPa。在指定位置处,自下而上布置3根土钉,土钉采用普通低碳钢,弹性模量E=210 GPa,直径为7 mm,在低碳钢上布置应变片以测定土钉轴力,土钉长度为1 m。应变片采用浙江黄岩仪器厂生产的BX120-5AA型应变片,将应变片对称地贴在土钉上、下侧,而后在其上刷一层环氧树脂以保护应变片。为提高土钉与土的接触强度,在环氧树脂表面涂了一层标准砂。土钉端部车有螺纹通过螺帽与面板连接。模型参数为:土钉弹性模量E=200 GPa,泊松比m=0.3;实木面板[9]参数为:弹性模量E=9.77 GPa,泊松比m=0.23。对压实度为80%时的非饱和土(含水量为13.4%),内摩擦角为23.2?,粘聚力σc=8.5 kPa,压缩模量为4 MPa,为计算方便,当压实度为90%时采用与压实度为80%时相同的物理力学参数。由于压实度为90%时的土体处于边坡底部,这种简化对计算结果影响较小。模型试验过程及数据见文献[10]。
2 有限元模型
在动力作用下,锚固边坡的变形稳定分析有等效法[11]和解耦法,前者是将加固结构与土体合并考虑,将加固结构物和土体等效为均值各向异性体,属于近似方法,其优点是不需要考虑锚固体与土体的接触计算。解耦法是将土体和加固物分开考虑进行计算。前者难以单独考虑结构物与土体之间的滑移,因此,常采用后一种方法。数值计算有多种方法,如离散元 法[12]、边界元法[13]、有限元法等,其中,较为常用的是有限元法。本文采用ADINA有限元法进行数值计算,土钉和面板采用线弹性模型,土钉采用桁架单元,面板和土体采用实体单元,土体屈服准则为Mohr-Coulomb准则。考虑到载荷幅值不大时,土钉与土体之间不出现滑动,采用土钉与土体节点进行耦 合[14]的方法,如图2所示。

(a) 接触前;(b) 接触时
图2 不考虑滑移的土钉与土体接触单元
Fig.2 Contact element between soil nail and soil considering no relative displacementt
动力计算有2种方式:一是显式求解,二是隐式求解[15]。当出现塑性区时,一般采用后者。对土钉支护进行有限元计算时常采用平面应变模型,如图3所示。在计算时,底部采用固定边界,右侧则为Y方向固定、Z方向可动的半固定边界。模型采用矩形网格,均为四边形单元,面板单元为60个,土体单元为672个;每根土钉单元为20个,共计60个。

图3 平面应变模型
Fig.3 Plain strain FEM model
3 计算结果分析
模型试验和数值分析采用相同的参数,加载波形为正弦波,频率为2 Hz,幅值为10~30 kPa,循环次数分别为100,200,500,1 000,4 000,7 000和10 000,考虑到数据量较大,在分析时主要取静载、100次、1 000次和10 000次的数据进行分析。
3.1 土钉轴力
在重力作用下,土钉轴力如图4所示,其反映了土钉支护潜在滑动面的发展情况。根据有限元计算结果,发现1号和2号2根土钉轴力在钉头位置最大,最下面的第3根土钉则在离面层一定距离处产生最大轴力。实际上,土钉轴力反映了2个方面:一是面层土压力,二是土钉支护潜在的滑裂面。近面板的土钉轴力反映了面层土压力,与实际情况相吻合,而面层之后的土钉轴力最大值则反映了危险滑动面位置,与实测结果[16]及理论计算结果[17]相吻合。动载的累积效应在3号土钉表现较为明显,但随着循环次数的增加,累积效应很快减弱,而1号和2号土钉似乎未反映动载的累积效应。其原因可能是坡面上部土体位移导致土压力释放,从而使轴力基本不变。

(a) 1号土钉,数值计算结果;(b) 2号土钉,数值计算结果;(c) 3号土钉,数值计算结果;(d) 模型实验结果
1—静载;2—1 000次动载;3—10 000次动载;4—1号土钉模型实验结果,10 000次动载;5—2号土钉模型实验结果,
10 000次动载;6—3号土钉模型实验结果,10 000次动载;
图4 不同加载次数下土钉轴力的模型试验结果和数值计算结果
Fig.4 Numerical and laboratory results of axial force of soil nails under different cyclic load numbers
3.2 坡顶沉降
土钉支护的位移[18]是工程界中非常关注的问题。目前,土钉支护规范对于坡顶沉降和坡面水平位移没有严格规定,特别是在周期荷载下,随着载荷次数的增加,可能会导致沉降的累积效应,当坡顶沉降超过某一界限后,可能导致边坡顶部开裂而发生失稳。通过数值计算发现,距离面板较远的部位似乎沉降较大,出现所谓的“沉降槽”[19],但试验结果没有出现该规律,其原因是试验中百分表固定于垫板上,反映的是垫板整体位移,无法反映坡顶各位置的实际位移。坡顶沉降数值计算结果和模型试验结果见图5。由图5可知,坡面附近的累积效应较明显,而在远离坡面位置,累积效应衰减较大。

(a) 模型实测值;(b) 模型计算值
1—静载;2—100次动载;3—1 000次动载;4—10 000次载动
图5 坡顶沉降数值计算结果和模型试验结果
Fig.5 Numerical analysis and laboratory test settlements of slope crest
3.3 坡面位移
坡面(面板)位移反映了面层刚度及土压力分布特征。研究结果表明:面板位移反映了明显的动载累积效应,面板位移沿坡高呈抛物线形式变化,静载下面板位移最大处所反映的累积效应也更明显,而在坡顶累积效应不显著。可见,在设计计算中,无论是动载还是静载,在面板位移较大的地方均应予以特别注意,以防止面板位移过大导致土钉失效。由图3可知,面板位移较大处对应的土钉轴力也较大,因此,面板处的土钉轴力、面板位移和土压力有对应关系。试验结果与数值计算结果存在定性上的对应关系,但在量上存在一定差别。其主要原因是计算模型取平面应变模型,而试验时边界效应较显著。
4 结 论
a. 土钉轴力受动载影响不大,累积效应不显著,并出现双峰值,在土钉与面板连接处出现较大值,在土体内部出现的峰值则近似对应滑动面位置。
b. 在坡面附近,坡顶沉降有一定的动载累积效应,但随着离坡面距离的增大,这种效应很不明显。需指出的是,坡顶沉降出现凹槽效应。
c. 在静载情况下,在边坡高度中部坡面位移较大,动载对坡面位移影响较大。在边坡中部出现放大效应,因此,在抗动载设计中,需要对中部位置土钉引起特别注意。
参考文献:
[1] 陈肇元, 崔京浩. 土钉支护在基坑工程中的应用[M]. 2版. 北京: 中国建筑工业出版社, 2000.
CHEN Zhao-yuan, CUI Jing-hao. Applications of soil nailing in pits[M]. 2nd ed. Beijing: China Architecture & Building Press, 2000.
[2] GJB 5055—2006, 土钉支护技术规范[S].
GJB 5055—2006, Technical specifications for soil nailed support[S].
[3] 曾宪明, 杜云鹤, 李世民. 土钉支护抗动载原型与模型对比试验研究[J]. 岩石力学与工程学报, 2003, 22(11): 1892-1897.
ZENG Xian-ming, DU Yun-he, LI Shi-min. Testing study of prototype and model comparison on resisting dynamical load with soil nail supporting[J]. Chinese Journal of Rock Mechanics and Engineering, 2003, 22(11): 1892-1897.
[4] 张宗领. 复合土钉支护施工过程及地震作用下的有限元分析[D]. 兰州: 兰州理工大学土木工程学院, 2007.
ZHANG Zong-lin. The FEM analysis of composite soil nailed wall in construction process and earthquake action[D]. Lanzhou: School of Civil Engineering, Lanzhou University of Technology, 2007.
[5] 董建华, 朱彦鹏. 地震作用下土钉支护边坡稳定性分析[J]. 中国公路学报, 2008, 21(6): 20-25.
DONG Jian-hua, ZHU Yan-pen. Stability analysis of slope supported by soil nailing retaining wall under earthquake[J]. China Journal of Highway and Transport, 2008, 21(6): 20-25.
[6] 喻晓今, 余学文, 张 豫. 数种情形下土钉的瞬态应变累积效应分析[J]. 华东交通大学学报, 2006, 23(4): 1-4.
YU Xiao-jin, YU Xue-wen, ZHANG Yu. Analysis of the effect of cumulation of transient strain on soil nail in several cases[J]. Journal of East China Jiaotong University, 2006, 23(4): 1-4.
[7] 赵延庆, 贾 渝, 曹荣吉. 交通荷载轴载谱参数的确定及分析[J]. 中外公路, 2007, 27(2): 185-188.
ZHAO Yan-qing, JIA Yu, CAO Rong-ji. Determination and analysis of axle load and its spectrum under traffic load[J]. Journal of China & Foreign Highway, 2007, 27(2): 185-188.
[8] 颜可珍, 夏唐代, 姜爱华. 交通荷载作用下地基中瑞利波的传播特性[J]. 岩土力学, 2004, 25(增刊2): 414-417.
YAN Ke-zhen, XIA Tang-dai, JIANG Ai-hua. Characteristics of rayleigh wave in soils generated by traffic load[J]. Rock and Soil Mechanics, 2004, 25(Suppl. 2): 414-417.
[9] 冯 冰, 杨临弟. 文县杨木材物理力学性质试验分析[J]. 甘肃林业科技, 2006, 31(1): 12-14.
FENG Bing, YANG Lin-di. Experimental research on the timber physic mechanics character of Wenxian poplar[J]. Journal of Gansu Forestry Science and Technology, 2006, 31(1): 12-14
[10] 祝方才, 廖新贵, 李建华. 循环荷载下非饱和重塑土土钉支护边坡的模型试验研究[J]. 岩石力学与工程学报, 2009, 28(增1): 2994-3000.
ZHU Fang-cai, LIAO Xin-gui, LI Jian-hua. Laboratory model test of soil nailed wall under cyclic load in unsaturated compacted soils[J]. Chinese Journal of Rock Mechanics and Engineering, 2009, 28(Suppl 1): 2994-3000.
[11] Jahanandish M, Keshavarz A. Seismic bearing capacity of foundations on reinforced soil slopes[J]. Geotextiles and Geomembranes, 2005, 23(1): 1-25.
[12] TAO Lian-jin, JIANG De-yi, ZHANG Zhuo-yuan. Dynamic discrete element method and its application in rock mass engineering[J]. Transaction of Nonferrous Metals Society of China, 2000, 10(6): 842-846.
[13] 许 瑾, 郑书英. 边界元法分析边坡动态稳定性[J]. 西北建筑工程学院学报: 自然科学版, 2000, 17(4): 72-75.
XU Jin, ZHENG Shu-ying. The slope dynamic stability analysis by BEM[J]. Journal of North West Institute of Architecture Engineering: Natural Sciences, 2000, 17(4): 72-75.
[14] Meschke G, Helnwein P. Large-strain 3D-analysis of fibre- reinforced composite using rebar elements: Hyperelastic formulation for cords[J]. Computational Mechanics, 1994, 13(4): 241-254.
[15] 潘昌实. 隧道力学数值方法[M]. 北京: 中国铁道出版社, 1995.
PAN Chang-shi. Numerical methods of tunnel mechanics[M]. Beijing: China Railway Press, 1995.
[16] 张明聚. 土钉支护工作性能的研究[D]. 北京: 清华大学土木水利学院, 2000: 107-108.
ZHANG Ming-ju. Research on behaviors of soil nailing[D]. Beijing: School of Civil Engineering, Tsinghua University, 2000: 107-108.
[17] 王立峰, 朱向荣. 土钉墙面层位移和内力的计算分析[J]. 岩土力学, 2008, 29(2): 437-441.
WANG Li-feng, ZHU Xiang-rong. Analysis of displacement and inner force in soil-nailing walls[J]. Rock and Soil Mechanics, 2008, 29(2): 437-441.
[18] 龚晓南. 土钉和复合土钉支护若干问题[J]. 土木工程学报, 2003, 36(10): 80-83.
GONG Xiao-nan. Some problems on soil nailing and composite soil nailing[J]. China Civil Engineering Journal, 2003, 36(10): 80-83.
[19] 杨林德, 李象范, 钟正雄. 复合型土钉墙的非线性有限元分析[J]. 岩土工程学报, 2001, 23(2): 149-152.
YANG Lin-de, LI Xiang-fan, ZHONG Zheng-xiong. The nonlinear analysis of FEM on composite soil-nailed retaining wall[J]. Chinese Journal of Geotechnical Engineering, 2001, 23(2): 149-152.
收稿日期:2008-10-25;修回日期:2009-01-08
基金项目:湖南省自然科学基金资助项目(05JJ40120,06JJ3002);中国包装总公司重点科研开发项目(04ZBKJB008);株洲市建设局科研项目(2005年)
通信作者:祝方才(1972-),男,湖北公安人,博士,教授,从事边坡稳定和隧道工程研究;电话:0731-22622145;E-mail: zfchubei@yahoo.com.cn