600 MW“W”型火焰锅炉NOx的排放特性
曹小玲1,皮正仁1,彭好义2,蒋绍坚2
(1.长沙理工大学 能源与动力工程学院,湖南 长沙,410004;
2.中南大学 能源科学与工程学院,湖南 长沙,410083)
摘 要:
临界600 MW”W”火焰锅炉NOx排放量过高为背景,对锅炉炉内燃烧过程进行数值模拟,研究不同负荷、不同煤种及不同配风方式对NOx排放量的影响。研究结果表明:不对称停运前后拱燃烧器会使NOx排放量升高,NOx排放量随燃料中N质量分数增大而增大;当前、后拱上气流或前后墙分级风量不同时,会使得NOx排放量升高。
关键词:
中图分类号:TK224 文献标志码:A 文章编号:1672-7207(2013)06-2569-06
NOx emission characteristics in a 600 MW W-shaped flame boiler
CAO Xiaoling1, PI Zhengren1, PENG Haoyi2, JIANG Shaojian2
(1. School of Energy and Power Engineering, Changsha University of Science and Technology, Changsha 410004, China;
2. School of Energy Science and Engineering, Central South University, Changsha 410083, China)
Abstract: Based on the fact that a 600 MW supercritical W-shape flame boiler of one power plant has high NOx emission, numerical simulation of the boiler on combustion process was conducted to study the effect of the NOx emissions with different loads, coals and air distributions. The results show that asymmetry outage burner make NOx emission increase, N content of the fuel is the most important factor affecting NOx formation, a mound of air on the front and rear arch or a mound of grading wind on the front and rear wall causes NOx emissions increase.
Key words:W flame boiler; numerical simulation; NOx emissions
“W”型火焰锅炉是我国燃用低挥发分无烟煤的主要炉型,而超临界“W”型火焰锅炉能极大地节约能源,是未来发展的方向,但我国目前运行的“W”型火焰锅炉普遍存在NOx排放量过高问题[1-3],国内相关研究人员对此进行了不少研究,如:朱伟平等[4]利用Fluent6软件对某电厂300 MW “W”型火焰炉中的常规燃烧方法和超细粉再燃的燃烧的NOx排放进行了数值模拟计算,发现超细粉再燃还原技术对降低300 MW “W”型火焰炉燃烧NOx排放量有较显著效果;孙小柱等[5]应用CFX软件对某台300 MW “W”型火焰锅炉对18种非设计配风工况炉内燃烧过程进行数值模拟,研究前、后拱上一次风不对称对NOx排放的影响规律,以及前、后墙二次风量偏差对NOx排放的影响规律。在锅炉实际运行过程中,负荷、煤种及配风方式不断变化,有时会严重偏离设计工况,这些因素变化对NOx排放量有显著影响,因此,对负荷变化、煤种变化及配风方式变化炉内燃烧过程进行模拟,研究炉内NOx排放规律,对减低NOx排放、减少环境污染有重要意义[4-9]。湖南某电厂600 MW超临界“W”型火焰锅炉在运行中NOx排放量较高,本文以此为背景,利用FLUENT软件对锅炉炉内燃烧过程进行建模,采用现场数据对模型进行验证,研究不同负荷、不同煤种和不同配风方等对NOx排放量的影响规律,以便为锅炉运行中降低NOx排放量提拱依据。
1 模拟对象
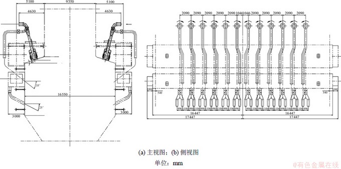
本文模拟的对象为湖南某电厂的600 MW超临界锅炉,为超临界参数、垂直炉膛、一次中间再热、平衡通风、固态排渣、全钢构架、露天布置的Ⅱ型锅炉,锅炉配有带循环泵的内置式启动系统。制粉系统为双进双出磨煤机正压直吹系统,锅炉采用“W”火焰燃烧方式,锅炉配A,B,C,D,E和F共6台磨煤机,并配置浓缩型EI-XCL低NOx双调风旋流燃烧器;燃烧器布置在炉膛的前后拱上,并垂直于前后拱;前后拱与水平面成15°,每排各有12只燃烧器,分别与6台磨煤机相连。燃用煤质见表1。本锅炉采用开式大风箱,在锅炉的前后拱上、下部各有1个开式大风箱,二次风进入上部风箱,分级风进入下部风箱,内、外二次风分别经燃烧器的内、外二次风调风套筒调风后喷入炉内;每台锅炉共24个乏气喷口,前后墙各12个,布置在燃烧器的下部,与燃烧器一一对应,并与水平成35°,在乏气管路上设有电动快关插板门。当某个燃烧器需要停运时,需将该燃烧器对应的乏气管道上电动快关门关闭。每个燃烧器下部均设有分级风管,风管上装有电动风门,每个分级风管分成 2个支管,每台锅炉共有48个分级风喷口,前、后墙各24个,分级风从风箱底部引出,分级风喷口与水平方向成 25°倾角引入炉膛,燃烧风箱图如图1所示。
表1 煤的工业分析与元素分析
Table 1 Coal industrial and elemental analysis


图1 燃烧风箱
Fig. 1 Combustion wind-box
2 数学模型及工况条件
2.1 数学模型
煤粉燃烧过程是一种具有化学反应的湍流反应流动过程,包括流体的流动、传热与传质、组分间的化学反应以及它们之间的相互耦合作用。煤粉燃烧过程包括为挥发分的析出与反应、焦炭的异相气化反应、辐射传热、颗粒运动和湍流流动等过程。本文所研究锅炉模型及网格划分如图2所示。运用gambit软件对锅炉模型划分六面体网格和适应性四面体网格的混合型网格,并对流动复杂区域进行加密,最终生成的网格总数为94万个。使用Realizable k-ε模型模拟湍流气相流动;采用标量守恒的混合分数-概率密度函数模拟挥发分燃烧,PDF模型的简化形式采用β函数分布;采用P1辐射模型计算炉内辐射换热;采用单步竞争反应速率模型模拟煤粉挥发分的析出,采用动力/扩散控制反应速率模型[10]模拟焦炭颗粒表面燃烧;采用Rosin-rammler分布描述固相颗粒分布特征;采用拉格朗日离散相模型[11]考虑颗粒相和气相间的相互作用,并采用随机轨道模型来追踪颗粒运动轨迹并同时考虑湍流脉动对焦炭运动的影响。

图2 锅炉模型及网格划分
Fig. 2 Generated grids in boiler model
2.2 NO生成模型
NOx生成方式主要包括热力型NOx、快速型NOx、燃料型NOx共3种[12]。对于燃煤电厂,产生的NOx中通常燃料型NOx质量分数占70%~85%,热力型NOx体积分数占15%~25%,很少一部分为快速型NOx[13]。在炉内燃烧过程中生成的NOx主要为NO,因此,在数值模拟过程中,只考虑NO的生成。
本文计算采用的NO反应机理如图3所示。在反应过程中,既存在着NO的生成反应,也存在NO的还原反应。图3中:反应1和2为燃料N的释放反应,反应3~5为 NO 的生成反应;反应6~8为NO的还原反应。燃料型NO是由燃料N生成的,但在生成NO之前燃料中N首先生成2种中间物HCN和NHi。燃料中N元素在煤颗粒升温热解过程中,一部分成为挥发分N随挥发分释放,直接生成 HCN(反应1),一部分成为焦炭N随煤焦燃烧释放,直接生成NHi(反应2);HCN氧化生成NHi(反应3),NHi被氧化生成NO(反应4);N2在高温下可直接氧化为热力型NO(反应5)。已生成的NO可通过反应6~8分别与CHi、煤焦和NHi反应,被还原成为N2。

图3 NO反应机理
Fig. 3 NO reaction mechanism
2.3 计算工况
以现场实际运行的额定负荷为基础进行模拟,分析影响“W”型火焰锅炉不同因素对NOx排放量的影响,并利用现场实测数据验证其计算结果的准确性。在实际工况下,过量空气系数α=1.2,其他工况则为锅炉实际运行可能出现的非设计工况。表2所示为总模拟工况。
3 模拟结果分析
3.1 模型准确性验证
为了验证实际工况模拟的准确性,对实际工况炉膛烟道出口NOx质量分数进行测定,现场测量的出口NOx质量分数为0.000 37[14],模拟值为0.000 404,相对偏差为8.42%,该误差能被工程应用所接受,因此,可以实际工况所选模型为基础对其他工况进行计算。
表2 总计算工况
Table 2 Calculation conditions

3.2 实际工况NO质量分数场分布
图4所示为实际工况(即工况1)下炉膛中心截面NO质量分数场示意图。从图1可以看出:NO质量分数最高区域都位于下炉膛煤粉剧烈燃烧区域,即下炉膛中心区域两侧。这里的NO质量分数可达到最高的3‰,根据燃料型NO和热力型NO的形成机理可知:由于大量的煤粉在此区域剧烈燃烧,局部温度达到2 200 K,燃料中的N元素被氧化成氮氧化物,还有高温所形成的热力型NO,不可避免地产生大量的NO。但随着炉膛高度增加,NO质量分数逐渐减小,一方面是因为烟气剧烈流动及它们之间的相互混合,NO被稀释;另一方面是因为炉内残留的焦炭和没有充分燃烧的CO对NO的还原作用,使得大部分NO被还原成N2,在炉膛出口NO的质量分数大大减少,低于0.000 5。

图4 实际工况下炉膛中心截面NO质量分数场分布
Fig. 4 NO concentration distribution of furnace center section in actual operation condition
3.3 不同负荷时水平截面平均NO质量分数分布
为满足调峰的需要,负荷是随时变化的,当负荷降到一定程度时,需停运燃烧器,为此,对对称停运燃烧器及不对称停运燃烧器对炉内燃烧过程的影响进行分析。
图5所示为炉膛高度方向上不同负荷水平截面平均NO质量分数分布曲线。从图5可见:NO质量分数分布趋势随炉膛高度总体上呈先升高后降低再升高再降低的分布趋势;在冷灰斗区域,450 MW工况、350 MW工况和工况1的NO质量分数依次降低,这是由于450 MW工况、350 MW工况和工况1的火焰中心依次降低,煤粉下冲深度依次降低,由于燃料中NO占总NO的生成量的80%左右,所以,NO生成量也依次升高;在上炉膛区域,450 MW工况的NO质量分数最高,600 MW工况的次之,350 MW工况的最低。这是因为450 MW工况停运燃烧器不对称,炉内速度场、温度场对称性较差,对燃烧不利,使得中间产物HCN和NHi质量分数增大,导致NO的生成量也相应增大。

图5 炉高方向不同负荷水平截面平均NO质量分数分布
Fig. 5 Average NO concentration distribution of horizontal section from different loads in furnace height
3.4 不同煤种对水平截面平均NO质量分数分布的影响
在锅炉运行过程中,燃用煤种经常变动频繁,煤种是影响燃烧的重要因素,计算时保持配风方式不变,只改变煤种。
图6所示为沿炉膛高度方向上不同煤种时水平截面平均NO质量分数分布。从图6可以看出:其质量分数分布趋势总体上都呈先平稳上升后急剧上升、急剧减少、缓慢降低的变化趋势;总的来说,工况4 的NO出口质量分数最高,实际工况NO出口质量分数最低。这是因为工况4所燃用的煤种2的N质量分数要明显比煤种1和煤种3的高,在生成的NO中,大部分是燃料型NO;尽管实际工况和工况5所燃用的煤种1和煤种3中N质量分数基本相同,但工况5上炉膛局部温度明显比实际工况的高[13],产生的热力型NO质量分数较高,致使工况5所生成的NO质量分数比实际工况的稍高。

图6 沿炉高方向上不同煤种时水平截面平均NO质量分数分布
Fig. 6 Average NO distribution of horizontal section from different coals in furnace height
3.5 不同配风时对水平截面平均NO质量分数分布的影响
为保证在炉膛内形成较理想的“W”型火焰,锅炉前后墙、前后拱上的配风基本是对称的,但由于在设备调整过程中,难以保证前后墙、前后拱上的配风完全对称,对此,对前后墙、前后拱配风不对称条件下的燃烧过程进行分析计算。

图7 沿炉高方向不同配风时水平截面平均NO质量分数分布
Fig. 7 Average NO distribution of horizontal section from different air distribution in furnace height
图7所示为沿炉膛高度方向上不同配风时水平截面平均NO质量分数分布,其中:工况7和工况8的前、后拱一次风比为5/6;工况9和工况10的前、后拱内二次风比为5/6;工况11和工况12前、后拱外二次风比为5/6;工况13和工况14的前、后墙上分级风比为5/6。从图7可见:各工况下水平截面平均NO质量分数分布趋势与实际工况基本一致,总体上都呈先升高再降低、再升高再降低的分布趋势;在实际工况下,NO的质量分数在各截面要明显低于前后拱或前后墙风量不对等时的各个工况,且前后拱上内外二次风偏差对NO生成影响最大,分级风和一次风影响最小,这说明当前后墙侧各风量不对称时,风量较小侧拱上气流下冲距离短,对燃烧产生不利影响,造成生成的中间产物HCN和NHi的质量分数增大,导致NO的生成量急剧升高。
4 结论
(1) NO质量分数最高区域都位于下炉膛煤粉剧烈燃烧区域,即下炉膛中心区域两侧。
(2) 在450 MW时,前后拱上燃烧器停运不对称,炉内速度场、温度场不对称,会引起NO排放量大大升高,烟气中NO质量分数可达0.000 688,远高于600 MW时NO的排放量。
(3) NO的排放量主要与燃料中的N元素质量分数有关,N元素质量分数越高,NO的排放量就越大,反之,就越小。当燃料中N元素质量分数相差不大时,局部温度高的工况产生的热力型NO较多,则NO的排放量就越高。
(4) 当前后拱上一次风、内外二次风及前后墙上分级风量不同时,NO排放量升高,且偏差越大,NO的排放量就越大;而当前后拱外二次风量比5/6时,质量分数最高可达0.000 621。
参考文献:
[1] 王学栋, 栾涛, 程林, 等. 锅炉燃烧调整对NOx排放和锅炉效率影响的试验研究[J]. 动力工程, 2008, 28(1): 19-23.
WANG Xuedong, LUAN Tao, CHENG Lin, et al. Experimental study of the effect of boiler combustion control on NOx emission and boiler efficiency[J]. Journal of Power Engineering, 2008, 28(1): 19-23.
[2] Zheng L G, Zhou H, Wang C L, et al. Combining support vector regression and ant colony optimization to reduce NOx emissions in coal-fired utility boilers[J]. Energy & Fuels, 2008, 22(2): 1034-1040.
[3] 窦文宇, 孔德娟, 周广杰, 等. 神木烟煤燃烧时NOx生成特性的试验研究[J]. 动力工程, 2009, 29(11): 1062-1066.
DOU Wenyu, KONG Dejuan, ZHOU Guangjie, et al. NOx formation characteristics during combustion of Shenmu bituminous coal[J]. Journal of Power Engineering, 2009, 29(11): 1062-1066.
[4] 朱伟平, 刘文林. 煤种变化对超细粉再燃降低电站NOx排放量的影响[J]. 沈阳工程学院学报: 自然科学版, 2008, 4(2): 121-123.
ZHU Weiping, LIU Wenlin. The Influence of coal type change on Ultrafine powder reburning and reducing NOx emission in power plan[J]. Journal of Shenyang Institute of Engineering: Natural Science, 2008, 4(2): 121-123.
[5] 孙小柱, 高正阳, 宋玮, 等. 非设计配风条件 W火焰锅炉NOx排放特性分析[J]. 热能动力工程, 2010, 25(1): 57-60.
SUN Xiaozhu, GAO Zhengyang, SONG Wei, et al. An analysis of the NOx emission characteristics of a boiler with a W-shaped flame under the condition of an off-design air distribution[J]. Journal of Engineering for Thermal Energy & Power, 2010, 25(1): 57-60.
[6] 崔伟春, 宋玮, 杨毅栎, 等. 过量空气系数对W型火焰锅炉燃烧影响的数值模拟研究[J]. 应用能源技术, 2008(10): 23-26.
CUI Weichun, SONG Wei, YANG Yili, et al. Numerical simulation investigations of the effect of excess air ratio on combustion characteristics in a W-flame boiler[J]. Applied Energy Technology, 2008(10): 23-26.
[7] 高正阳, 宋玮, 赵锦, 等. 变负荷下W型火焰锅炉燃烧特性的数值模拟研究[J]. 华北电力大学学报, 2010, 37(2): 63-67.
GAO Zhengyang, SONG Wei, ZHAO Jin, et al. Numerical simulation of the combustion characteristics of the W-flam boiler from different load[J]. Journal of North China Electric Power University, 2010, 37(2): 63-67.
[8] 孙超凡, 李乃钊, 杨华, 等. W火焰锅炉燃用劣质无烟煤的稳燃技术[J]. 动力工程, 2005, 25(2): 201-206.
SUN Chaofan, LI Naizhao, YANG Hua, et al. Technical research on stable combustion of the lambskin-fired W-flame boiler[J]. Chinese Journal of Power Engineering, 2005, 25(2): 201-206.
[9] Zhou H, Cen K F, Fan J R. Modeling and optimization of the NOx emission characteristics of a tangentially fired boiler with artificial neural networks[J]. Energy, 2004, 29(1): 167-183.
[10] 曹庆喜, 吴少华, 刘辉. 采用选择性非催化还原脱硝技术的600 MW超超临界锅炉炉内过程的数值模拟[J]. 动力工程, 2008, 28(3): 349-354.
CAO Qingxi, WU Shaohua, LIU Hui. Numerical simulation of furnace process in a 600 MW ultra supercritical boiler utilizing selective non-catalytic reduction technology[J]. Journal of Power Engineering, 2008, 28(3): 349-354.
[11] 赵坚行. 燃烧的数值模拟[M]. 北京: 科学出版社, 2002: 35-64.
ZHAO Jianxing. Numerical simulation of combustion[M]. Beijing: Science Press, 2002: 35-64.
[12] 杨冬, 路春美, 王永征. 不同种类煤粉燃烧NOx排放特性试验研究[J]. 中国电机工程学报, 2007, 27(5): 18-21.
YANG Dong, LU Chunmei, WANG Yongzheng. Experimental study on the characteristics of NOx emission with different pulverized coal combusting[J]. Proceedings of the CSEE, 2007, 27(5): 18-21.
[13] 阎维平. 洁净煤发电技术[M]. 北京: 中国电力出版社, 2002: 20-25.
YAN Weiping. Clean coal power generation technology[M]. Beijing: China Electric Power Press, 2002: 20-25.
[14] 皮正仁. 600 MW“W”型火焰锅炉燃烧过程的数值模拟[D]. 长沙: 长沙理工大学能源与动力工程学院, 2012: 1-20.
PI Zhengren. Numerical simulation on combustion process of 600 MW W-flame boiler[D]. Changsha: Changsha University of Science and Technology. School of Energy and Power Engineering, 2012: 1-20.
(编辑 陈灿华)
收稿日期:2012-06-20;修回日期:2012-08-27
基金项目:国家自然科学基金资助项目(51276023);湖南省高校创新平台基金资助项目(09K069);湖南省科技厅计划项目(2011GK3111)
通信作者:曹小玲(1974-),男,湖南郴州人,博士,副教授,从事燃烧理论与低劣煤的高效稳燃技术研究;电话:15973111541;E-mail:xiaolingcao3258@gmail.com
摘要:以某电厂1台超临界600 MW”W”火焰锅炉NOx排放量过高为背景,对锅炉炉内燃烧过程进行数值模拟,研究不同负荷、不同煤种及不同配风方式对NOx排放量的影响。研究结果表明:不对称停运前后拱燃烧器会使NOx排放量升高,NOx排放量随燃料中N质量分数增大而增大;当前、后拱上气流或前后墙分级风量不同时,会使得NOx排放量升高。
[1] 王学栋, 栾涛, 程林, 等. 锅炉燃烧调整对NOx排放和锅炉效率影响的试验研究[J]. 动力工程, 2008, 28(1): 19-23.
[3] 窦文宇, 孔德娟, 周广杰, 等. 神木烟煤燃烧时NOx生成特性的试验研究[J]. 动力工程, 2009, 29(11): 1062-1066.
[4] 朱伟平, 刘文林. 煤种变化对超细粉再燃降低电站NOx排放量的影响[J]. 沈阳工程学院学报: 自然科学版, 2008, 4(2): 121-123.
[5] 孙小柱, 高正阳, 宋玮, 等. 非设计配风条件 W火焰锅炉NOx排放特性分析[J]. 热能动力工程, 2010, 25(1): 57-60.
[6] 崔伟春, 宋玮, 杨毅栎, 等. 过量空气系数对W型火焰锅炉燃烧影响的数值模拟研究[J]. 应用能源技术, 2008(10): 23-26.
[7] 高正阳, 宋玮, 赵锦, 等. 变负荷下W型火焰锅炉燃烧特性的数值模拟研究[J]. 华北电力大学学报, 2010, 37(2): 63-67.
[8] 孙超凡, 李乃钊, 杨华, 等. W火焰锅炉燃用劣质无烟煤的稳燃技术[J]. 动力工程, 2005, 25(2): 201-206.
[10] 曹庆喜, 吴少华, 刘辉. 采用选择性非催化还原脱硝技术的600 MW超超临界锅炉炉内过程的数值模拟[J]. 动力工程, 2008, 28(3): 349-354.
[11] 赵坚行. 燃烧的数值模拟[M]. 北京: 科学出版社, 2002: 35-64.
[12] 杨冬, 路春美, 王永征. 不同种类煤粉燃烧NOx排放特性试验研究[J]. 中国电机工程学报, 2007, 27(5): 18-21.
[13] 阎维平. 洁净煤发电技术[M]. 北京: 中国电力出版社, 2002: 20-25.
[14] 皮正仁. 600 MW“W”型火焰锅炉燃烧过程的数值模拟[D]. 长沙: 长沙理工大学能源与动力工程学院, 2012: 1-20.