钢管轻集料混凝土组合梁受弯性能的试验研究
吉伯海,傅中秋,程苗,徐汉江,董亚东
(河海大学 土木与交通学院,江苏 南京,210098)
摘要:对钢管轻集料混凝土组合梁进行纯弯试验,研究组合梁破坏形态、协同工作性能、荷载-应变关系及抗弯刚度。研究结果表明:开孔钢板作为组合梁的剪力连接件可以保证混凝土板和钢管轻集料混凝土梁的协同工作性能,混凝土板与钢管轻集料混凝土梁的弯曲变形一致,两者相对滑移量小于1.0 mm;组合梁具有较高的抗弯承载能力且位移延性系数大于5.0;钢管对受拉轻集料混凝土具有良好的环向约束作用,在正常使用阶段,保证了组合梁良好的抗弯刚度;在未考虑钢筋混凝土板和钢管轻集料混凝土梁的相对滑移情况下,提出采用组合刚度法对钢管轻集料混凝土组合梁的抗弯刚度进行计算,计算值与试验实测值较吻合。
关键词:钢管轻集料混凝土;组合梁;纯弯试验;剪力连接件;抗弯刚度
中图分类号:TU398.9,TU317.1 文献标志码:A 文章编号:1672-7207(2013)01-0324-08
Experimental study on flexural behaviors of composite beam of lightweight aggregate concrete-filled steel tube
JI Bohai, FU Zhongqiu, CHENG Miao, XU Hanjiang, DONG Yadong
(College of Civil and Transportation Engineering, Hohai University, Nanjing 210098, China)
Abstract: Based on the pure bending test, the failure mode, cooperative effective performance, stress-strain curves and flexural rigidity of lightweight aggregate concrete-filled steel tube composite beam were studied. The results show that the perforated plate as the shear connector of composite beam connects the concrete slab and lightweight aggregate concrete-filled steel tube beam working together well. It has the same bending deformation of the concrete slab and lightweight aggregate concrete-filled steel tube beam, and the relative slip between them is less than 1.0 mm. The composite beam has good bending bearing capacity, and the displacement ductility of specimen exceeds 5.0.The steel tube has excellent constraint effect on lightweight aggregate concrete, which makes the composite beam possesses good flexural rigidity in normal service conditions. The theoretical formula is provided to calculate flexural rigidity without considering relative slip of the concrete slab and concrete filled steel tube. And the calculation results are close to the test values.
Key words: lightweight aggregate concrete-filled steel tube; composite beam; pure bending test; shear connector; flexural rigidity
钢管轻集料混凝土具有自身质量小、承载力高及延性好等优点,将其与钢筋混凝土板采用剪力连接件连接,形成钢管轻集料混凝土组合梁(以下简称组合梁)。组合梁与普通钢筋混凝土梁相比,由于核心混凝土受到钢管的约束,充分发挥了钢材的混凝土的材料特性,具有较好承载性能,更适合作为承受汽车荷载等动荷载的桥梁承重结构,其协同工作效应使较小的截面高度满足受力及变形要求[1-2]。同时,组合梁可以提前在工厂预制,在工程中直接吊装拼接,加快施工速度。将轻集料混凝土代替普通混凝土填充于组合梁的钢管中,在相同条件下,自身重力与钢管普通混凝土组合梁相比降低20%左右,可以进一步减小组合梁的截面高度[3-4]:因此,组合梁作为桥梁上部承重结构,不但可以减小对下部基础的负担,而且具有很小的建筑高度,适用于具有特殊净空要求桥梁结构尤其是城市高架桥梁。聂建国等[5-6]对钢-混凝土组合梁的抗弯、抗剪等力学性能进行了研究,提出了相关的近似计算公式。对于本文试验的组合梁结构形式,内布拉斯加州林肯大学(分校)结构试验室进行了试验研究[7],其他相关的研究报道较少。对组合梁进行抗弯性能的研究不仅有助于进一步探索该类结构的工作机理,而且可为组合梁在实际工程中的应用提供参考。在此,本文作者通过组合梁的纯弯试验,对组合梁的协调承载状态、荷载-应变曲线及抗弯刚度进行研究,并将组合梁的抗弯刚度的理论计算结果与试验结果进行比较。
1 试验概况
1.1 材料性能及试件设计
试验中,混凝土板采用普通混凝土浇筑,钢管中填充轻集料混凝土。为测得混凝土的抗压强度及弹性模量,各制作1组150 mm×150 mm×150 mm的立方体试块及1组150 mm×150 mm×300 mm的棱柱体试块,室内浇水养护28 d。混凝土的配合比及相应力学参数见表1。试验采用Q235直缝钢管,钢材的强度及弹性模量由拉伸试验确定,按《金属材料室温拉伸试验方法》[8](GB/T 228—2002)的要求进行,得到钢材的屈服强度fy=300.7 MPa,弹性模量Es=1.95×1011 Pa。
组合梁试件如图1(a)和(b)所示,它主要由钢管轻集料混凝土梁、钢筋混凝土板和剪力连接件组成,混凝土板横向钢筋穿过开孔钢板形成剪力连接件。在钢管中填充轻集料混凝土之前,将3根直径为8 mm、间距为50 mm的加强钢筋弯折定位,加焊于钢管内侧,并将开孔钢板焊接在钢管上部,轻集料混凝土采用分层浇筑、分层振捣。混凝土板中采用Q235钢筋,下层横向钢筋穿过开孔钢板。布置好纵向钢筋及横向钢筋的位置,支模浇筑混凝土。组合梁各部分的主要参数见表2。
1.2 加载装置及测点布置
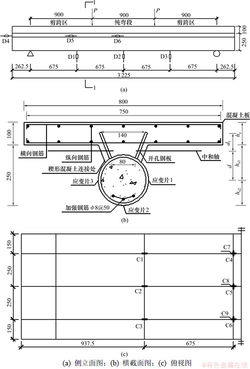
试验在河海大学土木与交通试验中心结构工程实验室进行。组合梁纯弯试验采用三分点加载方式,通过主分配梁直接作用于放置在混凝土板上的钢梁上,机械千斤顶手动加载。荷载由压力传感器测量,应变及宏观变形分别由电阻应变片和电测位移计测量。如图1(a)所示:在组合梁弯曲平面内的中点及四分点处布置3个电测位移计D1-3以测定组合梁的竖向挠曲,在组合梁锲形混凝土连接处沿长度方向布置3个电测位移计D4-6以测定组合梁的相对滑移。混凝土板及钢管上的电阻应变片的具体布置如图1(b)和(c)所示,混凝土板上的应变片用C表示,钢管上沿长度方向四分点及中点处布置纵向和环向应变片。
试验采用分级加载制度,为了有效控制加载速度,试验前预估试件的破坏荷载。在预估破坏荷载的70%~80% 之前,按荷载的1/10~1/20分级加载,每级荷载间停2 min左右,使变形充分发展。在此之后,按荷载的1/20~1/25分级加载,接近破坏时慢速连续加载,直至试件挠曲变形明显为止。试验全过程数据自动采集系统对各传感器实行连续数据采集。
表1 混凝土配合比及力学性能
Table 1 Mix proportion and mechanical properties of concrete

表2 组合梁件主要参数
Table 2 Main parameters of composite beam specimens


图1 试件示意图及测点布置(单位:mm)
Fig.1 Schematic diagram and measuring point arrangement of specimen
2 试验结果与分析
2.1 破坏过程和破坏形态
图2和图3所示分别为试件破坏时的挠曲变形及混凝土板表面的裂缝分布,试件的破坏形态类似于钢筋混凝土梁中的适筋破坏形态,试件下部钢管先达到屈服状态,然后,纯弯段混凝土板被压碎,剪跨区混凝土板发生纵向剪切开裂。
图4所示为试件跨中截面的弯矩-挠度曲线。从图4可见:该曲线由弹性阶段、弹塑性阶段及下降段组成,为试件的大致破坏过程;在弹性阶段(OA),曲线基本呈线性关系,试件各截面处于弹性状态,组合梁的整体变形一致,比例极限A点的弯矩约为极限弯矩的70%;随着荷载的增大,试件进入弹塑性阶段(AB),此时钢管底部开始屈服,试件的挠度增加速度加快,在未达到极限弯矩B点前,挠度较大增加;当达到极限荷载后,曲线进入下降段(BC),试件的承载力随挠度的增大而减小,曲线下降平缓,表现出较强的后期承载能力。

图2 试件挠曲变形
Fig.2 Flexural deformation of specimen

图3 混凝土板表面裂缝分布
Fig.3 Surface crack of concrete slab

图4 试件跨中截面弯矩-挠度曲线
Fig.4 Relationship between moment and deflection at mid-span section of specimen
随着作用于试件上的荷载不断增大,试件的挠曲变形不断增加,混凝土板表面的裂缝逐渐开展。当荷载不再增大,而试件变形继续增加时,认为作用于试件上的荷载已达到极限荷载。
2.2 试验结果分析
2.2.1 位移延性
位移延性系数
(其中,
为名义屈服位移,
为极限位移)。名义屈服位移为名义屈服点的位移,极限位移为试件承载力下降到85%的极限荷载Pu时对应的位移[9]。如图4所示,A点对应的挠度为试件的屈服挠度
,D点对应的挠度为试件承载力下降到85%极限荷载时的挠度
。位移延性系数
,试件破坏时延性特点明显,满足抗震设计要求[10]。
2.2.2 协调工作性能
图5所示为试件在荷载作用平面内挠度沿构件长度方向的分布曲线。从图5可以看出:随着荷载的增大,试件的挠度沿着中点对称逐渐增大,其挠曲线形状与正弦半波基本吻合;开孔钢板在传递剪力的同时,有效地抵抗了混凝土板的掀起;当作用于组合梁上的荷载达到极限荷载时,钢管轻集料混凝土梁与混凝土板的弯曲曲率仍可以基本保持一致。

图5 试件挠度分布曲线
Fig.5 Distortion distributions of specimen
图6所示为试件跨中截面沿高度方向的纵向应变曲线。从图6可见:在各个荷载阶段,试件截面应变分布基本符合平截面假定;在加载初期,试件截面处于弹性阶段,拉压区应变增加速度一致;随着荷载增大,钢管受拉区先于混凝土板进入弹塑性阶段,中和轴向受压区偏移,最终位于混凝土板下层钢筋的上侧。
图7所示为试件的相对滑移曲线。从图7可见:在荷载加载初期,试件处于弹性状态,剪跨区内各点相对滑移量和该点与纯弯段的距离成正比,四分点处的相对滑移量大约为梁端的一半;同时,在整个加载过程中,随着荷载的增大,由于混凝土板开裂等,试件梁端的滑移量增加明显,最大滑移量约为0.7 mm;在试件被破坏时,其相对滑移量很小,开孔钢板呈现出较强的抗剪强度,作为剪力连接件保证了钢管轻集料混凝土梁与混凝土板的协调变形。

图6 试件跨中截面纵向应变分布
Fig.6 Distribution of vertical strains at mid-span section of specimen

图7 试件相对滑移曲线
Fig.7 Relative slip curves of specimen
2.2.3 荷载-应变关系
图8(a)所示为钢管跨中截面纵向应变分布图,可见:纵向应变曲线均存在明显的屈服点;当荷载达到极限荷载70%左右时,钢管底部开始屈服,其余部分仍处于弹性状态,限制试件变形的发展;随着荷载的增大,钢管的屈服范围向上发展;当荷载约为极限荷载80%时,钢管中部开始屈服;当试件达到极限荷载时,纵向应变已经充分发展,试件为典型的延性破坏。图8(b)所示为钢管跨中截面环向应变曲线,均为压应变。这说明轻集料混凝土始终处于环向受压状态,钢管的存在有效约束了轻集料混凝土的变形开裂。
图9所示为混凝土板顶跨中截面纵向应变分布。从图9可见:由于剪力滞后效应[11-12]影响,混凝土板中间的纵向压应变略大于混凝土板边缘的纵向压应变,总体上纵向压应变沿横向分布比较均匀。这说明在整个板宽内,混凝土有效地参与了工作,对组合梁的强度及刚度起了重要作用。

图8 钢管跨中截面应变曲线
Fig.8 Strain curves at mid-span section of specimen

图9 混凝土板顶跨中截面纵向应变分布
Fig.9 Distribution of vertical strains at mid-span section of concrete slab
3 组合梁抗弯刚度
3.1 基本假定
组合梁的抗弯刚度分析可按弹性方法进行[13],取正常使用状态下的抗弯刚度作为组合梁的抗弯刚度。采用如下基本假定[14-16]:(1) 钢与混凝土均为理想的线弹性体;(2) 有效宽度内的混凝土翼缘板按实际面积计算,板内钢筋忽略不计;(3) 组合梁符合平截面假定;(4) 忽略钢管轻集料混凝土梁与混凝土板间的相对滑移。
3.2 抗弯刚度试验值的确定
从图5可近似假设试件的挠曲变形为1个正弦半波,因此,构件的挠曲变形可表示为[17] :
(1)
对上式求二阶导数,可得到曲率与挠度的关系:
(2)
式中:um为组合梁的挠度;l为组合梁的计算跨度。根据式(2)及图6,可以得到试件的跨中弯矩-曲率关系曲线,如图10所示。
根据图10可以得到试件的抗弯刚度。文献[18]提出以受弯钢管混凝土构件在M=0.6Mu的抗弯刚度作为构件的正常使用阶段抗弯刚度,因为此时构件的受力通常处于各种外荷载组合作用下的正常使用受力状态。从图5可以看出组合梁试件处于弹性阶段,因此,本文取M=0.6Mu时的割线刚度作为正常使用阶段抗弯刚度是合理的。

图10 试件跨中截面弯矩-曲率曲线
Fig.10 Relationship between moment and curvature at mid-span section of specimen
3.3 抗弯刚度理论值的计算
3.3.1 组合系数法
当组合梁为完全剪力连接时,计算抗弯刚度可忽略交界面的相对滑移,也可采用组合系数法[14]计算抗弯刚度:
(3)
组合系数
为剪力连接件的存在使组合梁抗弯刚度增加的放大系数。在完全剪力连接时,
按下式确定:
(4)
式中:Kc为钢管轻集料混凝土的抗弯刚度,代替组合系数法公式[12]中钢梁抗弯刚度EsIs;EcIc为混凝土板的抗弯刚度;EsAs为钢管抗拉刚度;EcAc为混凝土板抗压刚度。其他符号含义如图1(b)所示。根据图10(a)中的弯矩-纵向应变曲线,当M=0.6Mu时,跨中截面纵向应变已经较大,不考虑轻集料混凝土对EsAs的贡献。
3.3.2 组合刚度法
组合梁的最大相对滑移量低于1 mm(见图8),开孔钢板可作为完全剪力连接件[12],并且不考虑相对滑移对试件抗弯刚度的折减。忽略锲形混凝土块,仅考虑混凝土板及钢管轻集料混凝土梁对抗弯刚度的贡献。
根据已有研究表明钢管轻集料混凝土的抗弯刚度可参照日本规程AIJ(1997)[19]:
(5)
式中:钢材弹性模量
;混凝土弹性模量
,fc为混凝土圆柱体抗压强度;轻集料混凝土立方体强度fcu按《轻集料混凝土技术规程JGJ—2002》确定。
根据试件的几何参数,可以通过计算得到弹性阶段组合梁截面的中和轴位置。组合梁的抗弯刚度由下式进行计算:
(6)
式中:
为钢管的换算截面惯性矩,
;
为轻集料混凝土的换算截面惯性矩,
;
为混凝土板的换算截面惯性矩,
。其他符号含义如图1(b)所示。
3.4 抗弯刚度结果的比较
抗弯刚度实测值与按2种理论方法计算得到的抗弯刚度如表3所示。从表3可见:组合刚度法计算值B1与实测值B0及组合系数法抗弯刚度计算值B2接近,相结误差在5%以内。说明不考虑相对滑移引起的折减,运用组合刚度法计算组合梁的抗弯刚度是正确的。在实际工程中,采用组合刚度法预估组合梁的抗弯刚度更方便,具有一定的应用价值。
表3 抗弯刚度对比
Table 3 Comparison of flexural rigidities

4 结论
(1) 组合梁破坏时,挠曲变形明显,位移延性系数大于5.0,延性破坏特点明显。其破坏形态类似于钢筋混凝土梁中的适筋破坏形态,以下部钢管屈服、纯弯段混凝土板压碎及剪跨区混凝土板纵向剪切开裂为主要标志。
(2) 钢筋混凝土桥面板与钢管轻集料混凝土之间的相对滑移量小于1.0 mm,且两者弯曲变形一致,开孔钢板作为剪力连接件可以保证钢筋混凝土桥面板与钢管轻集料混凝土梁协同工作性能。
(3) 组合梁充分发挥了混凝土板抗压和钢管抗拉的特点,钢管对轻集料混凝土具有环向约束作用,阻止了轻集料混凝土的受拉开裂,有效地提高了组合梁的抗弯刚度及抗弯承载力。
(4) 提出了采用组合刚度法计算组合梁的抗弯刚度,与组合系数法计算结果及试验实测结果相比,相对误差均小于5%,表明组合刚度法具有一定的工程应用价值。
参考文献:
[1] 吉伯海, 周文杰, 王晓亮. 钢管轻集料混凝土中长柱轴压性能的试验研究[J]. 建筑结构学报, 2007, 28(5): 118-123.
JI Bohai, ZHOU Wenjie, WANG Xiaoliang. Experimental study on the behavior of lightweight aggregate concrete filled steel tube middle long columns under axial comparison[J]. Journal of Building Structures, 2007, 28(5): 118-123.
[2] 蔡绍怀. 现代钢管混凝土结构[M]. 修订版. 北京: 人民交通出版社, 2007: 1-7.
CAI Shaohuai. Modern concrete filled steel tube structures[M]. Revised Edition. Beijing: China Communication Press, 2007: 1-7.
[3] 吉伯海, 胡正清, 陈甲树, 等. 圆钢管轻集料混凝土构件抗弯性能的试验研究[J]. 土木工程学报, 2007, 40(8): 36-42.
JI Bohai, HU Zhengqing, CHEN Jiashu, et al. An experiment study on the behavior of lightweight aggregate concrete filled circular steel tubes under pure bending load[J]. China Civil Engineering Journal, 2007, 40(8): 36-42.
[4] 吉伯海, 傅中秋, 胡正清. 钢管轻集料混凝土短柱偏心受压性能的试验[J]. 交通科学与工程, 2009, 25(3): 22-28.
JI Bohai, FU Zhongqiu, HU Zhengqing. Experimental behavior of lightweight aggregate concrete-filled circular steel tube stubs subjected to eccentric loading[J]. Journal of Transportation Science and Engineering, 2009, 25(3): 22-28.
[5] 聂建国, 李有红, 唐亮. 高强钢-混凝土组合梁受弯性能试验研究[J]. 建筑结构学报, 2009, 30(2): 64-69.
NIE Jian-guo, LI Hong-you, TANG Liang. Experimental study on HSS-concrete composite beams[J]. Journal of Building Structures, 2009, 30(2): 64-69.
[6] 聂建国, 陈林, 肖岩. 钢-混凝土组合梁正弯矩区截面的组合抗剪性能[J]. 清华大学学报: 自然科学版, 2002, 42(6): 835-838.
NIE Jianguo, CHEN Lin, XIAO Yan. Composite shear behavior of steel-concrete composite beams under sagging moment[J]. Journal of Tsinghua University: Science and Technology, 2002, 42(6): 835-838.
[7] 董军, 张瑶, 魏蓝, 等. 桥梁钢管混凝土主梁的试验分析[J]. 世界桥梁, 2006, 51(5): 51-55.
DONG Jun, ZHANG Yao, WEI Lan, et al. Experimental analysis of a bridge girder made of steel tube filled with concrete[J]. World Bridges, 2006, 51(5): 51-55.
[8] GB/T 228—2002, 金属材料室温拉伸试验方法[S].
GB/T 228—2002, Metallic materials tensile testing at ambient temperature[S].
[9] 郭健, 何益斌, 肖阿林. 实腹式型钢混凝土柱延性系数分析[J]. 中南大学学报: 自然科学版, 2008, 39(1): 196-201.
GUO Jian, HE Yibin, XIAO Alin. Analysis of ductility factor of full-web steel reinforced concrete columns[J]. Journal of Central South University: Science and Technology, 2008, 39(1): 196-201.
[10] GB 50011—2001, 建筑抗震设计规范[S].
GB 50011—2001, Code for design seismic of building[S].
[11] Amadio C, Fedrigo C, Fragiacomo M, et al. Experimental evaluation of effective width in steel-concrete composite beams[J]. J Constructional Steel Research, 2004, 60(3): 199-220.
[12] Kristek V, Evans H R, Ahmad M K M. A shear lags analysis for composite box girder[J]. J Constructional Steel Research, 1990, 16(1): 1-21.
[13] GBJ 50017—2003, 钢结构设计规范[S].
GBJ 50017—2003, Code for design of steel structures[S].
[14] 王景全, 吕志涛, 刘钊. 部分剪力连接钢-混凝土组合梁变形计算的组合系数法[J]. 东南大学学报, 2005, 35(增刊): 5-10.
WANG Jingquan, LYU Zhitao, LIU Zhao. Consistency factor method for calculating deformation of composite steel-concrete girders with partial shear connection[J]. Journal of Southeast University, 2005, 35(Supplement): 5-10.
[15] Thomas H, Jesper G, Nielsen M P. An improved effective width method based on the theory of plasticity[J]. Advanced Steel Construction, 2010, 6(1): 515-547.
[16] Arne G U. A simplified analysis method for composite beams with interlayer slip[J]. International Journal of Mechanical Sciences, 2009, 51(7): 515-530.
[17] 李帼昌, 刘之洋. 自应力钢管轻骨料混凝土结构[M]. 沈阳: 东北大学出版社, 2001: 118-120.
LI Guochang, LIU Zhiyang. Self-stressing concrete filled steel tube structure[M]. Shenyang: Northeast University Press, 2001: 118-120.
[18] 卢辉, 韩林海. 圆钢管混凝土抗弯刚度计算方法探讨[J]. 工业建筑, 2004, 34(1): 1-5.
LU Hui, HAN Linhai. Calculations of flexural stiffness of concrete-filled steel tubes with circular sections[J]. Industrial Construction, 2004, 34(1): 1-5.
[19] 韩林海, 杨有福. 现代钢管混凝土结构技术[M]. 北京: 中国建筑工业出版社, 2004: 343-346.
HAN Linhai, YANG Youfu. Modern technology of concrete filled steel tube structure[M]. Beijing: China Building Industry Press, 2004: 343-346.
(编辑 陈灿华)
收稿日期:2011-11-10;修回日期:2012-01-27
基金项目:国家自然科学基金资助项目(51208176);中国博士后科学基金资助项目(2012M511187)
通信作者:吉伯海(1966-),男,江苏扬州人,教授,从事钢桥抗震及组合结构桥梁理论研究;电话:13082544056;E-mail: hhbhji@163.com